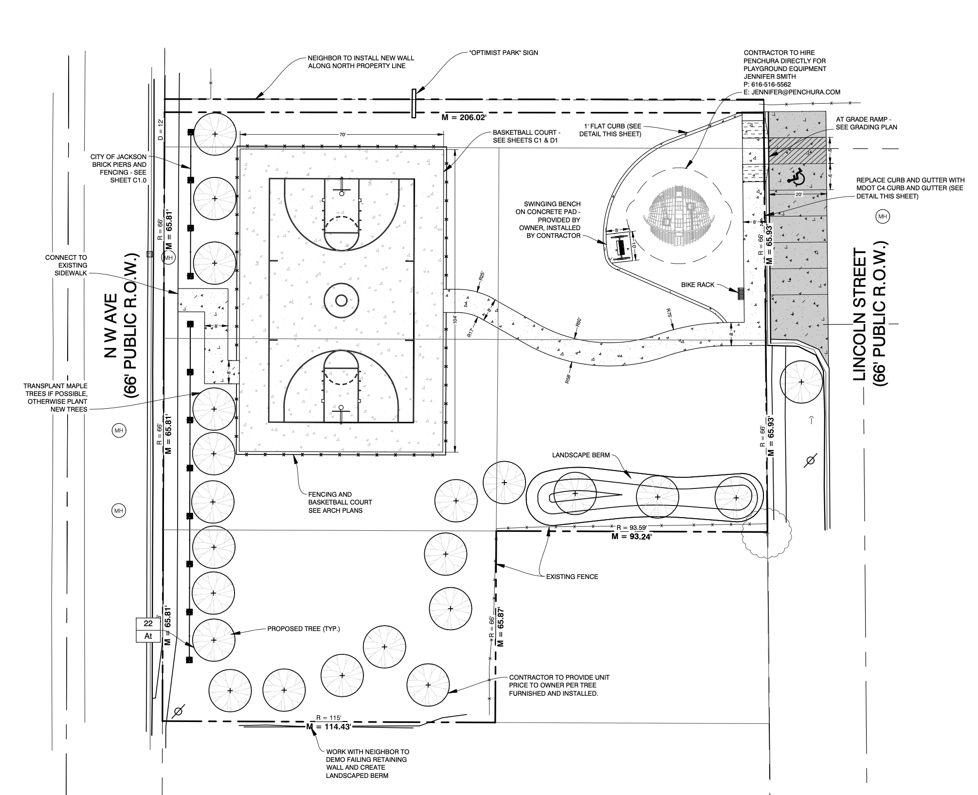
Optimist Park has been a popular gather place for decades, and now thanks to a property sale from the City of Jackson, this public park is getting new investment. Construction at Optimist Park started Monday, July 10, bringing a new basketball court, playground, and landscaping for the community to enjoy.
Optimist Park serves City’s northwest side. The park’s reshaping is happening thanks to the sale of adjacent commercial property on N. West Avenue owned by the City of Jackson. Earlier this spring, the City Council approved a $1.5 million sale to a private developer to construct new businesses on the property. Because a portion of the park reached into the vacant commercial property, the official park area will be reshaped to accommodate the businesses.
Funds from the property sale are being used to reshape the park and for renovations at the Boos Recreation Center. “This new development is presenting a unique opportunity to re-invest in Optimist Park, which is in need of new recreation offerings,” Hoover said. “This park is getting new life so it can continue to serve the Jackson community.”
City Manager Jonathan Greene says the commercial development will bring more jobs and business opportunities to the N. West Avenue corridor. “The sale of this City-owned property boosts our local economy and enhances a City park, so this is something that improves Jackson for everyone,” Greene said.
Construction on the new Optimist Park is expected to be complete in early fall 2023. N. West Avenue is Jackson’s main commercial corridor with restaurants, shopping centers, offices and access to I-94 and U.S. 127. Announcements about what businesses are coming to the property will come from the developer at a future date.
A plan of the new park's layout is available on this page.
